Two grid power

两网电力设备

HXGN□-12交流金属封闭环网开关设备

产品概述:

HXGN□-12交流金属封闭环网开关设备(简称环网柜)适用于交流50Hz,12kV的电力系统。广泛用于工业及民用电缆环网及供电终端。特别适用于小型二次变电站、开闭所、城市居民区配电、工矿企业、商场、机场、地铁、 风力发电、医院、体育场、铁路等场所。
产品型号说明

环网型
箱式结构
固定式
户内型
设计序号
额定电压 kV
额定电流 A
Ⅰ:FLN36-12 负荷开关 Ⅱ:FLN48-12 负荷开关


使用条件
● 海拔高度:≤1000m(如有特殊要求可在订货时注明,目前有6组在5200m海拔运行);
● 环境温度:-35℃+45℃,最大日平均温差≤25℃;
● 相对湿度:日平均不超过95%,月平均相对湿度不超过90%;
● 防震:8度;
● 剧烈震动和冲击以及没有火灾、化学腐蚀、爆炸危险场所;
注:订购本产品超出上述条件规定时,请与本公司协商。

执行标准
● GB 3906-2006《3.6 kV~40.5 kV交流金属封闭开关设备和控制设备》;
● IEC 60298-1990《额定电压1kV以上至52kV及以下交流金属封闭开关设备和控制设备》;
● GB/T 11022-2011《高压开关设备和控制设备标准的共用技术要求》。

产品特点
● SF6环网柜易组合扩展,体积小,安全可靠;
● 应用SF6气体作绝缘和灭弧介质,恒定磁场旋弧灭弧方式使其灭弧能力不受电弧电流大小影响,开断性能好,过电压小,电气寿命长,灭弧室免维护;
● 可具有三工位,多功能,可设有小型化压力表;
● 操作简单,可靠性高的操作机构和闭锁;
● 通过了SF6气体零表压的额定开断试验,功能裕度大,可能性极高;
● 接地开关具有符合国标的短路开合能力;
● 柜体用进口敷铝锌板冲压成形,采用拼装式结构,坚固耐变形。

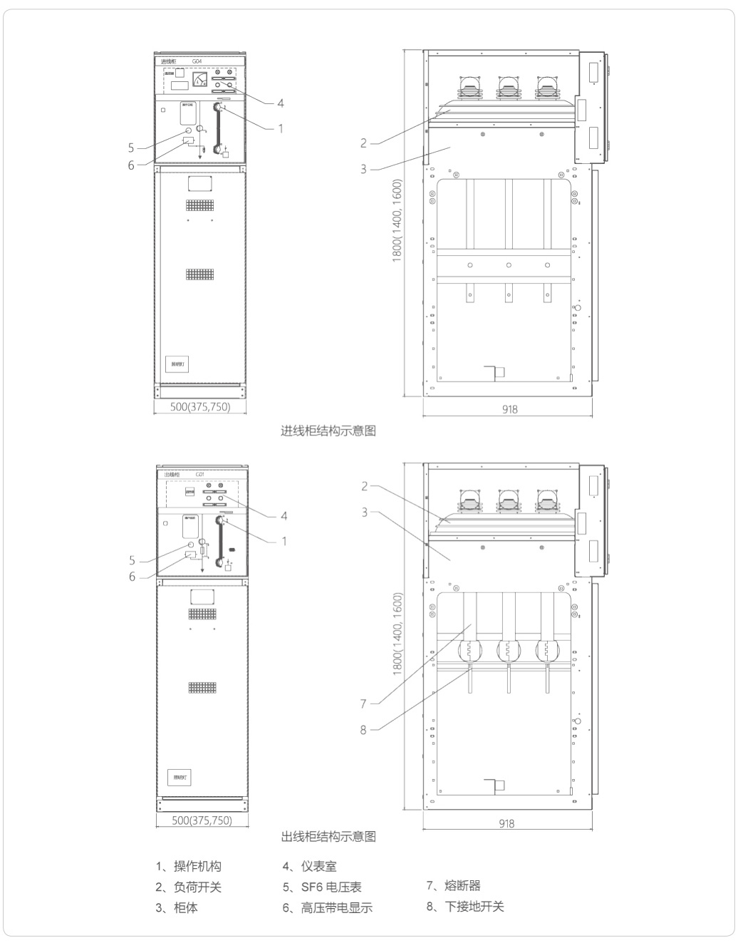
产品结构
● 总体结构
环网柜由母线室、负荷开关(或断路器室)、电缆室、操动机械、联锁机构和低压控制室以及测量或计量回路等部分组成,各隔室用钢板分割,可避免故障影响到邻室。
● 母线室
母线室布置在柜体的上部,在母线室中主母线连接在一起,贯穿整排开关柜。母线呈水平布置,可方便扩展。
● 主开关室
负荷开关室:开关室内装有一台负荷开关,负荷开关的外壳为环氧树脂浇注而成,内充SF6气体作灭弧和绝缘介质,在操作轴引出端设有两个透明的热压成型的塑料端盖,透过它可以观察触头状态。开光室内可根据客户要求装设SF6气体密度表或带报警触点的气体密度器。断路器室:断路器室位于柜体中部,可根据客户需要装配专用的真空断路器或SF6断路器,其开断容量可以满足正常投切和分支网络的操作
以及特殊情况下开断短路电流等,真空断路器特别适用于频繁操作网络系统。断路器配有弹簧操动机构,具有重合闸功能,并且动作可靠、寿命长。
● 电缆室
电缆室主要用于电缆的连接,使单芯或三芯的电缆可以采用简单的非屏蔽电缆头进行连接,同时充裕的空间还可以容纳避雷器、电流互感器、下接地开关的元件。按标准设计,柜门有观察窗户和安全联锁装置,电缆室底板配密封盖和带支架的大小相宜的电缆夹。电缆室底板的门前框可以拆下,方便电缆安装。
● 操动机构、联锁机构和低压控制室
带联锁的低压室同时起到控制屏的作用。低压室内装有带位置指示器的弹簧操动机构和机械联锁装置,也可以装设辅助触点、跳闸线圈、紧急跳闸机构、电容式带电显示装置、钥匙锁和电动操作装置,同时低压室空间还可以供装设控制回路、记录仪表和保护继电器,750mm宽柜设有两个相同的低压室,可以装更多附件。

技术参数
序号 名称 单位 数值
1 额定电压 kV 12
2 额定频率 Hz 50
3 主母线额定电流/熔断器最大额定电流 A 630,125
4 主回路、接地回路额定短时耐受电流 kA/S 20,3
5 主回路、接地回路额定峰值耐受电流 kA 50
6 主回路、接地回路额定短路关合电流 kA 50
7 负荷开关满容量开断数 100
8 熔断器开断电流 kA 31.5,40
9 额定闭环开断电流 A 630
10 额定转移电流 A 1600
11 机械寿命 2000
12 1min 工频耐压(峰值)相对、对地/隔离断口 kV 42,85
13 雷电冲击耐受电压(峰值)相间、对地/隔离断口 kV 75,85
14 二次回路 1min 工频耐压 kV 2
15 防护等级   IP3X


结构简图


联系方式
浙江galaxy银河电气股份有限公司
地址:浙江省乐清市乐清经济开发区纬十六路159号
服务热线:400-826-9123
网址:www.